Шептицька міська рада
Львівської області
Контакти
Телефон:
+38 03249 3-23-46
Електронна пошта:
info@sheptytska-rada.gov.ua
Адреса:
80100, пр.Шевченка,19, м. Шептицький, Шептицький район Львівська область
Головна
Управління громадою
Міська рада
Склад міської ради
Депутатські комісії
Розподіл депутатів за адресами по округам
Виконавча влада
Міський голова
Звіти міського голови
Заступники міського голови
Виконавчий комітет
Старости
Структура виконавчих органів Шептицької міської ради
Документи міської ради
Рішення сесії
Проєкти рішень сесії
Порядки денні сесій
Документи виконавчих органів
Розпорядження міського голови з основної діяльності
Розпорядження міського голови по керівному складу підприємств комунальної власності
Рішення виконавчого комітету
Проєкти рішень виконавчого комітету
Порядки денні виконкому
Підрозділи
Управлiння житлово-комунального господарства
Управлiння працi та соцiального захисту населення
Управлiння мiстобудування та архiтектури
Фінансове управління
Відділ земельних відносин
Відділ освіти
Відділ культури
Відділ молоді і спорту
Відділ інспекції з паркування
Відділ цифрової трансформації, інформаційної політики та прозорості
Відділ ведення Державного реєстру виборців
Відділ з питань персоналу
Відділ охорони здоров'я
Вiддiл з питань надзвичайних ситуацiй, оборонної та мобiлiзацiйної роботи
Вiддiл у справах дiтей
Відділ реєстрації місця проживання
Центр надання адміністративних послуг
Вiддiл фiнансування та бухгалтерського облiку
Вiддiл капiтального будiвництва та iнвестицiй
Загальний відділ
Організаційний відділ
Юридичний відділ
Архівний відділ
Відділ економіки
Комунальні інституції
Комунальні підприємства
Житлокомунсервіс Шептицької міської ради
Теплоенергомережа Шептицької міської ради
Водоканал Шептицької міської ради
Комунальник
Парк культури та відпочинку Шептицької міської ради
Комунальні підприємства
Центральний ринок Шептицької міської ради
Спортивний комплекс
Соснівський ринок
Комунальні заклади
Будинок воїна
Центр первинної медико-санiтарної допомоги
Центральна міська лікарня
Соснівська міська лікарня
Червоноградська міська стоматологічна поліклініка
Публічність
Протидія корупції
Запобігання корупції
Антикорупційна програма
Декларування
Викривачі корупції
Антикорупційна інформація
Уповноважена особа з питань запобігання та виявлення корупції
Електронна демократія
Звернення громадян
Електронні петиції
Електронні опитування
Підзвітність
Доступ до публічної інформації
Регуляторна політика
Публічні реєстри
Очищення влади
Публічні закупівлі
Обгрунтування закупівель
Бюджет громади
Стратегія розвитку громади
Публічні інвестиції
Середньостроковий план пріоритетних публічних інвестицій
Єдиний проєктний портфель
Засідання місцевої інвестиційної ради
Вакансії
У виконавчому комітеті ШМР
Інші вакансії
Протоколи засідань конкурсних комісій
Протоколи та звіти
Протоколи сесій ради
Протоколи засідань комісій ради
Протоколи колегії ради
Протоколи засідань виконавчого комітету
Поіменні голосування депутатів
Поіменні голосування виконавчого комітету
Звіти про діяльність старост
Звіт про управління комунальним майном
Інші документи
Комісія з розгляду питань щодо надання компенсації за пошкоджені/знищені об’єкти нерухомого майна внаслідок бойових дій, терористичних актів, диверсій, спричинених збройною агресією Російської Федерації проти України
Інші документи
Нормативно-правова база
Меморандуми
Комісія з розгляду питань щодо надання допомоги для вирішення житлового питання окремим категоріям внутрішньо переміщених осіб, що проживали на тимчасово окупованій території
Прозорість
Безбар'єрність
Управлiння мiстобудування та архiтектури
Управління інформує
Загальне
Про управління
Набори відкритих даних
Інформація щодо оцінки ступеня безбар'єрності
Містобудування
Проєкти містобудівної документації
Містобудівна документація
Служба містобудівного кадастру
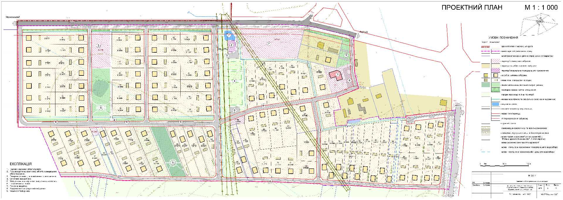
Детальний план території на вул. Шахтарській в селі Бендюга Сокальського району з метою будівництва житлових будинків
Головна
Детальні плани с.Бендюга
Детальний план території на вул. Шахтарській в селі Бендюга Сокальського району з метою будівництва житлових будинків
Поширити: